Bạn đau đầu với diện tích căn hộ của mình vì nó quá nhỏ. Đừng nên như vậy, hãy tham khảo thiết kế căn hộ nhỏ xinh chỉ 22 mét vuông của nhà thiết kế Jelena Fateeva không gian sống của bạn vẫn hoàn toàn được đảm bảo khép kín và tiện nghi.
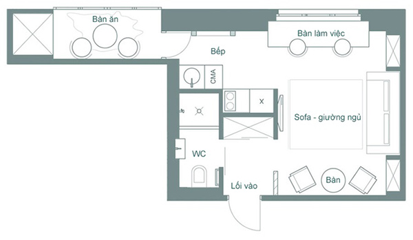
Ngôi nhà sẽ có thiết kế căn bản như sau:
.jpg)
Ngôi nhà sử dụng gam màu chủ đạo là màu trắng, bên cạnh đó, những vật dụng màu cam lam cho ngôi nhà được điểm tô và ấm áp hơn rất nhiều. Bạn hoàn toàn cảm nhận được tinh tế và đáng yêu của một phòng khách như vậy.
.jpg)
Một chiếc ghế sofa giường vô cùng tiện nghi, bạn vừa có thể dùng để tiếp khách đồng thời sẽ là một chiếc giường tiện nghi để các vị khách có thể nghỉ lại. Nếu tinh ý, bạn có nhận thấy, trong ngôi nhà những chiếc tủ nhỏ được bố trí khắp nơi. Đây là địa điểm thú vị để lưu giữ đồ đạc, không một đồ dùng nào phải bày biện ra bên ngoài.
.jpg)
Một chiếc bàn nhỏ bên cửa sổ vừa có thể dùng làm bàn ăn đồng thoài cũng có thể trở thành chiếc bàn làm việc khi bạn cần. Sự đa năng này giúp bạn tiết kiệm được rất nhiều diện tích trong cuộc sống sinh hoạt hàng ngày.
.jpg)
Không gian giữa các phòng được liên thông với nhau, không quá cầu kì nhưng điều này làm cho ngôi nhà được rộng rãi và thoáng vô cùng.
.jpg)
Những chiếc tủ bếp nhỏ nhắn và đều được cấu tạo với bề mặt phẳng không tốn nhiều diện tích, đồng thời trông rất gọn gàng và ngăn nắp. Bạn hoàn toàn có thể nấu một bữa ăn trong căn bếp xinh xắn và đáng yêu này. Diện tích nhỏ những căn bếp vẫn luôn đầy đủ tiện nghi.
.jpg)
Một khoảng diện tích thừa được tận dụng một cách triệt để. Bạn có một không gian để thư giãn, ăn uống hoặc nói chuyện tại nơi đây.
.jpg)
Một WC nhỏ nhưng đầy đủ tiện nghi, bạn hoàn toàn có thể cải tiến nó nếu như có những ý tưởng mới và độc đáo.
Vấn đề trong thiết kế căn hộ không nằm ở diện tích của nó. Mà quan trọng hơn đó chính là sự sáng tạo và logic. Nếu như bạn khoa học, với một diện tích dù không lớn vẫn hoàn toàn đáp ứng được đầy đủ mọi nhu cầu.